︎
, PLLC
WORK
ABOUT
PRESS
CONTACT
Mark
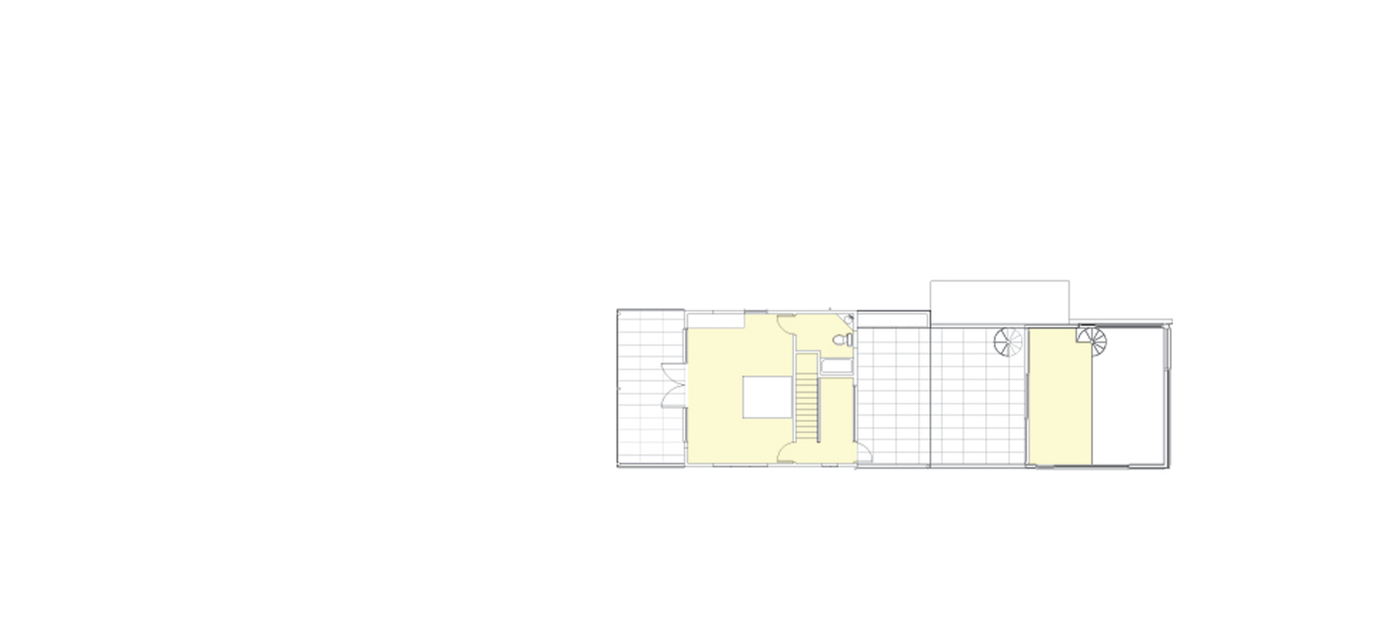
ECHO PARK HOUSE
LOS ANGELES, CA
Addition and remodel to 1940's single family structure in Echo Park.